Netcompc
Tuya Smart Lock Cylinder
Tuya Smart Lock Cylinder
Description
Description
Tuya Smart Lock Cylinder Electronic key Wireless WIFI Zigbee Lock Core Intelligent Encryption Door Lock for EU Lock Smart Home
Tuya Smart Lock Cylinder Wireless WIFI Zigbee Lock Core Intelligent Encryption Door Lock for EU Lock Smart Home
Main Features:
-- Compatible with both right and left opening doors
-- Panic exit device with exterior keyed lever able for exterior opening with keys
-- Device is made of metal material, corrosion resistance, and fireproof
-- Panic devise with dogging feature, solid cored spring bolt
-- Resisting sawing and destruction
-- Suitable for both wood or metal door applications
-- Easy installation and safety guarantee
Technical Parameters:
-
Power Supply: DC 4.5V battery
-
Battery Model: LR1 AM5 SIZE N 1.5V
-
Control Channels: 2 channels
-
State of Assembly: Ready-to-Go
-
Scale: 1:5
-
Working Temperature: -25℃ ~ +55℃
-
Working Humidity: 5% ~ 93%RH
-
Key Quantity: 5
-
Materials: 304 Stainless Steel, Brass, Nickel-silver, ABS
-
Package Size: 22.5x15.5x5cm
This lock is Intelligent electronic lock, the keys bulit-in smart chip. It will keep your home safe. You need to use the Electronic key to lock/unlock. You can't control the lock by Phone APP, but you can manage the keys and check the lock record by APP. Your also can add the lock to your smart home by APP.
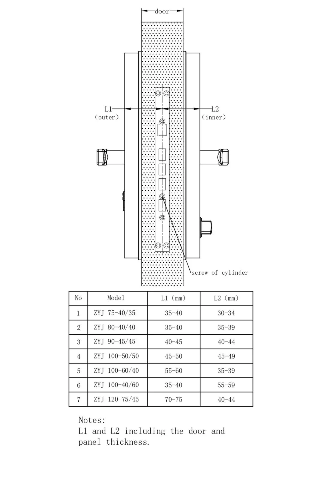
Note: Please check for your lock size carefully, then look the last link picture to place right order. Any problem, please contact with us to solve it. The parcel not include battery.
















cerradura inteligente
fechadura eletronico digital
smart lock
fechadura eletrônica
도어락
smart door lock
cerradura inteligentes wifi
chapas inteligentes para puertas
قفل باب ذكي
fechadura digital
lock
자물쇠
fechadura
ttlock
smart lock door
padlock
door lock smart
cerradura electrónica para puerta
cerraduras inteligente para puertas
candado combinación
디지털도어락
cerradura
fechaduras inteligente
قفل ذكي
serrure de porte intelligente
cerraduras de huellas dactilares
gümrüksüz vergisiz ürünler ücretsiz sevkiyat
candado
fechadura eletronica
أقفال البصمة
door lock
fechadura eletrônica digital
cerradura inteligente puerta casa
cerradura de puerta intelligente
serratura smart
fechadura eletronica tuya wifi
cerradura electrónica
fechaduras de impressão digital
fechadura digital biometrica
candados
locks
قفل
fechadura tuya
eufy
fingerprint locks
cerraduras
디지털 도어락
cerraduras electronicas inteligentes
fechadura digital biometria
serrure connectée
умный замок
מנעול
cerradura inteligente exterior
מנעול חכם
candados de seguridad
מנעול חכם לדלת
padlocks
cadeado digital biométrico
türschloss elektronisch
fingerprint lock
fechadura de porta
cerradura puerta wifi
lucchetto combinazone
cerraduras para puertas
cadeado
smart home
nuki
قفل باب
디지털 현관문도어락
candado inteligente
zamek elektroniczny do drzwi
smart lock front door
tt lock
ttlock smart lock
cerradura wifi
fechadura eletronia digital
master lock
מנעולים
fechadura inteligente
кодовый замок на дверь
fechadura eletrônica biométrica
smartlock
замок
combination lock
serrure de porte
smart door
tuya
قفل باب الكتروني ذكي
cerradura puerta
مفاتيح ذكية
smart doors lock
keyless door lock
combination locks
tuya door lock
fechaduras eletrônicas
door lock wifi
cerradura tuya
지문잠금장치
hogar
candado p
300 in stock
Couldn't load pickup availability
-
All orders are dispatched the next business day!
-
We will beat any price. We back all products with a 1 year guarantee.
Share
Have a Question?
✲